Wohnsiedlung, 1. Etappe
Dällikon ZH, 2020 - 2024

Auftragsart: Wettbewerb, 1. Rang 2019
Baukosten: CHF 16.0 Mio
Leistungen: Generalplaner, Architektur
Bauherr: Anlagestiftung der Migros-Pensionskasse
Status: Gebaut
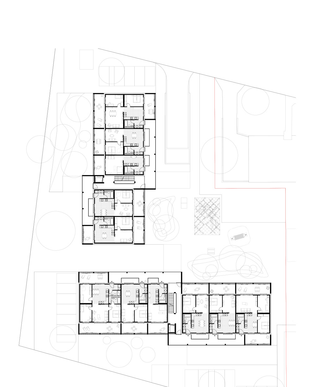
Eine einfache, direkte Wohnungstypologie prägt die Überbauung. Ohne Erschliessungs-/Korridorflächen bieten die Wohnungen kompakte, gutproportionierte Zimmer an mit dem Herzstück, einer hellen, geräumigen und häuslichen Küche mit ausreichendem Platz für einen grossen Tisch (je nach Wohnungsgrösse). Ausnutzungsbevorzugt wurden in Zusammenarbeit mit der Bauherrschaft sehr grosse, unbeheizte Jahreszeitenzimmer entwickelt, die vollständig geöffnet werden können.


Prozessauszug: Die Laubengangtypologie im Wechselspiel mit den Gebäudelängsseiten ist ausnutzungsbefreit und somit ein sehr wirtschaftliches Erschliessungssystem. Brandschutztechnisch gilt es im Treppenhaus und auf den Lauben komplexe Themen einzuplanen. Auch die Konstruktionen sollen mit der zweischichtig geplanten Begehungsebene dauerhaft sein, obschon die Konstruktion sehr wirtschaftliche Vorgaben zu erfüllen hat.

Regelgeschoss




Mitarbeit Team: Roger Biscioni, Benedetta Bisotti, Marc Graf, Max Müller, Silvan Wettstein, Nicole Wenzel, Olivia Steiger, Christoph Giger, Martin Haller, Jing Zhao, Robert Gehring, Elisa Loganes
Baumanagement: Bauseits Partner AG
Bauingenieur: A. Keller AG
Elektro: Enerpeak AG
HLKS: HL-Technik AG
Bauphysik: Zehnder + Kälin AG
Landschaftsarchitektur: Brogle Rüeger GmbH
Lichtgestaltung: vogtpartner
Bilder: Roland Bernath