Salpark, Pflegeheim und Wohnen
Winterthur ZH, 2021 - 2028

Auftragsart: Wettbewerb, 1. Rang, 2022
Baukosten: CHF 67.0 Mio
Leistungen: Architektur
Bauherrschaft: Hülfsgesellschaft Winterthur
Status: in Ausführung
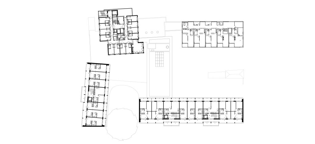
Die Stiftung "Hülfsgesellschaft" Winterthur plant einen neuen Gebäudekomplex entlang der Neuwiesen- und Salstrasse, der nahtlos mit dem bestehenden Gebäude verbunden wird. Die erhaltene Blutbuche wird zum charakteristischen Merkmal des neuen Hauptzugangs zum Alterszentrum an der Salstrasse. Es entstehen neue Gewerbeflächen, 48 Pflegezimmer und 67 Mietwohnungen. Die geplante Erweiterung des Seniorenzentrums zeigt einen deutlich sichtbaren Auftritt im Quartier, während klare und strukturierte Kuben eine ruhige Präsenz im städtischen Umfeld vermitteln.


Erdgeschoss mit Garten
Prozessauszug: Es ist von zentraler Bedeutung, eine durch das gesamte Areal verlaufende, kohärente Struktur zu schaffen, die flexible Wohnungsgrössen ermöglicht. Die Pflegezimmer fügen sich geschickt in diese Struktur ein. Aufgrund der Nachfrage nach kompakten Wohnlösungen an zentraler Lage sind die Grundrisse der Wohnungen effizient gestaltet.

1. Obergeschoss mit Pflegeräume

4. Obergeschoss mit Wohnungen und bestehende Hochhaus




Mitarbeit Team: Roger Biscioni, Marc Graf, Nicole Wenzel, Andrea Marini,
Antonio Obrist, Gilaad Bensimon, Stefano De Santis, Maleno Karrer
Bauingenieur: Synaxis AG
Elektro: Amstein + Walthert AG
HLKS: Amstein + Walthert AG
Landschaftsarchitektur: Uniola AG
Bauphysik: Zehnder & Kälin AG
Brandschutz: siQS GmbH
Lichtgestaltung: vogtpartner
Visualisierungen: Tom Schmid