Schulhaus Dorf II
Wiesendangen ZH, 2014 - 2018

Auftragsart: Wettbewerb, 1. Rang, 2014
Baukosten: CHF 7.4 Mio
Leistungen: Generalplaner, Architektur, Baumanagement, Kosten
Bauherrschaft: Schulgemeinde Wiesendangen
Status: Gebaut
Anstelle der alten Turnhalle wurde ein neues Schulhaus städtebaulich so platziert, dass der Dialog mit dem altehrwürdigen Schulhaus Dorf I bestehen bleibt. Die Struktur des Schulhauses ist auf allen Geschossen flexibel, um zukünftige Änderungen der Schulräume baulich zu ermöglichen. Ein markantes Dach schützt die Fassade, schafft natürlichen Schatten und bietet gleichzeitig eine gedeckte Pausenzone für die Schüler.


Prozessauszug: Die Statik des neuen Schulhauses ist zweiteilig. Die äussere Stützenstruktur trägt das Stahldach und ist eine Kaltkonstruktion, die eigenständig steht. Im Innern überspannt ein Träger die Eingangshalle und den Singsaal, um grosse, stützenfreie Räume zu ermöglichen. Im Bauablauf waren diese komplexen Herausforderungen sinnvoll zu trennen sowie umsichtig und präzise zu terminieren.

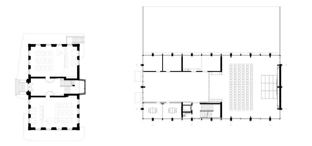
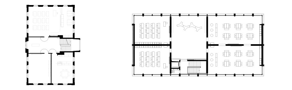
Grundriss Erdgeschoss

Obergeschoss mit Schulzimmer

Längsschnitt durch die Schulgebäude

Ansicht





Mitarbeit Team: Roger Biscioni, Marc Graf, Gilaad Bensimon, Christoph Giger, Matthias Schnell
Bauingenieur: Dr. Deuring + Oehninger AG
Elektro: 3-Plan AG
HLKS: 3-Plan AG
Landschaftsarchitekt: Hoffmann & Müller GmbH
Bauphysiker: Mühlebach Partner AG
Fassadenplaner: MCS + Partner AG
Lichtgestaltung: vogtpartner
Bilder: Roland Bernath, Zürich / Arnold Kohler