Mehrzweckhalle Bach
Romanshorn TG, 2021 - 2027

Auftragsart: Wettbewerb, 1. Rang, 2021
Baukosten: CHF 15.5 Mio
Leistungen: Planung, Ausführung, Kosten
Bauherrschaft: Stadt und Schulen Romanshorn
Status: in Ausführung
Die Dreifachhalle definiert mit Präsenz und Eleganz einen öffentlichen Raum entlang der Kreuzlingerstrasse, deren ebenerdigen Zugang über den Vorplatz zugleich den Eintritt in den Park entlang des Bachs markiert. Das architektonische Konzept mit der grossflächig verglasten Nordseite schafft optimale Lichtverhältnisse und eine spannende Aussen-/Innenbeziehung. Die festliche Galerie, zugänglich über zwei Treppen vom Foyer, eröffnet sich ein reizvoller Blick auf den Park über das Vordach "infinity green", welches nicht nur die Biodiversität fördert, sondern in Kombination mit der Holzbauweise die ökologische Nachhaltigkeit stärkt.


Situationsplan
Prozessauszug: Die Konstruktion und Erscheinung der Halle sucht die Verbundenheit zur Hafenstadt in der Analogie zum «Schärenkreuzer»; einem Handwerklich sorgfältig konstruiertem Segelboot. Die Statik der Halle, welche sich wellenförmig aussen sichtbar aneinanderreiht und volumensparsam sowie schattenwirksam ist, ist ein Beispiel dazu. Ein weiteres Beispiel wird die ästhetisch prägende Seitenfasse, welche mit einem segelartigen Zeichen (in der Nacht beleuchtet) Öffentlichkeit vermittelt.

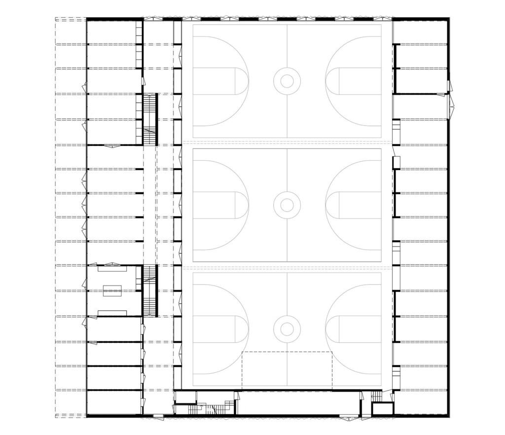
Erdgeschoss mit Dreifachsporthalle

Querschnitt durch die Sporthalle

Ostfassade mit Park

Mitarbeit Team: Roger Biscioni, Marc Graf, Nicole Wenzel, Gilaad Bensimon, Benedetta Bisotti, Simon Hagen, Andrea Marini, Max Müller, Mona Nüssli, Ramon Oetterli, Alessia Stefanori
Bauherrenvertretung: Blumergaignat AG
Baumanagement: RBM Ruppanner Baumanagement GmbH
Holzbauingenieur: Krattiger Engineering AG
Massivbauingenieur: Ribi und Blum AG
Elektro: Elektro-Werk GmbH
HLKS: IG Energietechnik GmbH
Sanitär: Längle & Staub Sanitärplanung GmbH
Landschaftsarchitekt: Sima Breer
Bauphysik: Gerevini Ingenieurbüro AG
Brandschutz: Krattiger Engineering AG
Fassadenplanung: GKP Fassadentechnik AG
Bühnenplanung: Theatech
Lichtplanung: Projektlicht GmbH
Sportgeräteplanung: Alder + Eisenhut AG
Gastroplanung: Ruedi Menet GmbH
Visualisierungen: Tom Schmid